设计:PB STUDIO + studiomania + IPA Ipreferanalog

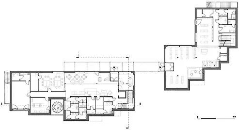
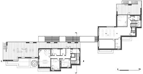
项目的主要目标是打造一个现代化的公共空间,以促进不同年龄层和背景的当地居民之间的社交互动、休闲放松,并增强社区归属感,面积850㎡。设计理念的一个关键要素是打造一个温馨宜人的内部庭院,这得益于新建筑在场地上的战略性布局。尽管该地块位于该区域一个主要路口,位置颇具挑战性,但这样的布局使投资者得以充分挖掘该地块的潜力。

建筑的设计旨在充当声学缓冲空间,它背对繁忙的街道,朝向内部庭院敞开。其建筑形态顺应地形,并与现有建筑线保持一致,建筑立面设有退台,有助于分散和削弱街道噪音。建筑体量被划分为两个功能区:社区中心和图书馆。

朝向街道的建筑立面覆盖着垂直的木质条板,这些条板的纹理增强了声屏障的效能,同时还可作为攀援植物的格架。依据城市视觉艺术顾问的指导方针,朝向庭院的建筑立面采用了温暖的米白色调。这些建筑与庭院及景观元素共同构成了一个和谐统一的建筑与材质组合。水磨石铺就的广场与建筑内部空间流畅衔接,并过渡为阶梯式座椅,在视觉和空间上将建筑与周边环境融为一体。

阶梯式露天剧场般的台阶可容纳户外活动、工作坊以及露天电影放映,鼓励社区居民积极参与。广场中央设有一座喷泉,其水流声进一步掩盖了街道噪音,提升了空间的舒适度。设计特别关注老年居民的需求,在绿植环绕中设置了阳光充足的休息区和棋桌。两座建筑均设有可供公众使用的屋顶露台,既可从建筑内部抵达,也可从广场直接进入。整个建筑群遵循统一的导视系统,并符合最高的无障碍通行标准。
























